沿着海峡潮湿炙热的风,追溯百年前南洋复古的格调,以摩登视角展开福州本地与海外侨胞共荣的历史岁月图景,开启这场奢华的『经典回归』。项目地址位于福州城市CBD核心地段——信和广场,客群定位是以高端商务宴请为主。设计团队便以品质、精致与时尚定位空间,试图为城市精英们,提供一个足够匹配他们身份的宴请场所。整体空间承袭名门望族府邸的东方礼序,中国传统院落中的“三进制”规划原则。东汉郑玄注 《礼记•玉藻》记载“天子五门,诸候三门”,秉承千年的贵胄礼序与形制等级演化出现今尊贵的待客之道,拉长的径深赋予场域强烈的仪式感,进而打造“出则繁华,入则宁静”的空间氛围。
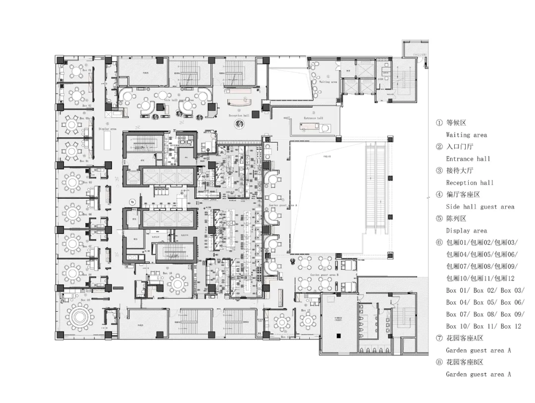
一进门厅,设置于吊顶的镜面金属材质提升空间纵向尺度,并以蕴含岭南特色的醒狮作引,与福州漆器髹饰技艺相结合。两地非遗文化在作为空间点睛之笔的同时,也为每一位宾客送以象征吉祥如意的欢迎礼。转入深深廊道,点点亮光似繁星坠入其中,红稠绿暗,灯影晃耀,似烟霞轻拢,又如碧波潋滟。原本荒废的采光中庭走道,摇身变为商场里别具一格的休闲花园。提取岭南元素与南洋窗格演化而来的屏风,层层递进。为客人营造出在花园中踱步,一步一景致的体验。花园墙面的巨幅艺术作品,出自福州在地摄影艺术家——宋蓬勃先生。以暗调的红绿撞色对闽地山水进行再创作,特殊的制作工艺与金属材质的碰撞,于无声中诠释雍容华贵的复古美学,演绎优雅的摩登浪漫。二进中厅,特以中岛接待台为轴心,开辟出一百多平的空间,建立和谐统一的对称布局。在理性和浪漫的有序组合里平衡内外空间的秩序。悬挂于中心的Art deco几何艺术吊灯,与地板经典的黑白条纹石材相互呼应,解锁空间更多元的视觉层次。迎客的礼仪彰显主人的待客之道。繁花盛开的中岛接待台,为客人带来多感官的沉浸式体验。景致的植入曲折了空间动线,与灯光的切换一齐重新梳理了空间关系,成为过渡与连接内外空间的第二个视觉中心,营造“二进院落”的四季景致。“天下大事,必作于细。从空间材质的严选、软装定制、灯光氛围的精微营造,到客人看不见的地方,都藏着精奢之微。”朴拙的空间底色,配合精致写意的装饰,才能将空间串联为有机的整体。拉长的连廊宛如旧电影的长焦,镜头之下,自动恒温酒柜映于流光曳影中,反射出璀璨光泽,其奢华质感不言而喻。清朗的玻璃陈列柜,切换出光与影的动效。随着位移的产生,光轨不再是平铺直叙的衍射,而是在空间体块中穿透、交叠。借位的艺术手法,勾勒出空间氤氲的复古质感。三进大厅,延续南洋建筑独有窗格元素的屏风装饰,复古之中兼有摩登气质。极具观赏性的器皿与绿植倒映于墙面的复古镜面,在熹微灯光的烘托下,延展空间的虚实关系。对品质的极致追求,使得备餐台也一反常态,大胆采用了透明玻璃的形式。这一设计亮点既是出于对餐厅运营极高卫生标准的信任,也是针对客人高规格服务细节的体现。一抹涌动的色彩映衬在过道尽头,在交叠的大厅空间层次内起伏跃动,高饱和色调的嵌入未显芜杂,却恰好达成了时尚与复古的微妙平衡。食物之精髓以艺术的表达、摩登的装饰掀起局部的视觉盛宴,食客也由此以探索者的形象展开对味蕾之旅的期许。目光移转,进入包厢前区,长岛台的设置化解了悠长通道的无趣。设计依附于实用主义的外壳,在增强空间节奏体验的同时,也解决了实际运营中送餐及收餐所需的中转台功能。通过幽暗的灯光氛围控制,营造进入私密区域的静谧感,墙面序列延申的壁灯,提取了品牌符号:四叶草。作为空间的灯光点缀,亦在食客的行走过程中起到指引的作用。由物衍生的感官体验和情绪变化被恰到好处的细节所关照,这未尝不是一种人与景的联动。恰如粤妃之名,包厢空间便似着绿衣裳,点红胭脂的妃子,自帘后款款而来,其坠饰奢美华贵,举手投足间,若有国色天香之韵。入室门拉手,采用奢石镶嵌的艺术设计,增加推门进入的仪式感。进入空间内部,吊顶波浪形态的设计,随日影与灯光的变幻泛出不同的光彩,墙面点缀的独家摄影艺术作品,于细微中透出金属质感,与其他晶莹的材料,共同彰显空间奢华与摩登的完美邂逅。一处专供泡茶雅谈的私人茶桌,让包厢拥有更多的自由空间,身与心的松弛,只为食客更满意的体验感。新式与经典的交锋,不仅停留于色块的错综程度,亦表现于物品材质所营造的空间质感。从水晶杯盏到奢石台面,皆使用高端品牌,质感华丽,造型简约,臻享尊贵的同时避免空间喧宾夺主,让客户将注意力更多停留于味蕾之上。卫生间除了在使用功能的归置与细节上的处理,在空间设计上延续复古与时尚相融合的调性,钢琴漆木面,水墨纹路的奢石面板,乃至卫生间洁具品牌甄选,只为给客人更尊贵的独特体验。
主要材料|皇家翡翠、皇家红、冷翡翠、宇宙星云、进口岩板、定制樱桃木钢琴烤漆板、定制锯齿纹实木地板、定制暗古铜不锈钢格栅、定制夹绢玻璃品牌支持|中策标识、金仕敦奢石、北美ICC瓷砖、奥胜火金属、汉诺地板、科洛德涂料、贤赫木品、辉格美晶酒窖、元居陈设、福州蜜邸软装、德国杜拉维特卫浴、德国高仪卫浴

▽


△度世界·精酿博物馆(南京旗舰店)

△度世界·精酿博物馆(沙湖旗舰店)


以上作品版权归 YaoDesign耀设计 所有,我们乐于分享所有的精彩创意,同时敬请您与我们一同保护知识产权。如果您喜欢我们的观点和作品,请点击右上方按钮,分享到朋友圈。或关注我们的微信公众号:YaoDesign耀设计 。公众平台与媒体合作约稿请发函至下列官方邮箱,我们将会尽快与您联系。
YaoDesign耀设计 官方联系渠道:
邮箱:yaodesign@vip.163.com
官网:www.yaodesign.net