Now that he decides to leave, please do not ask for his time of returning

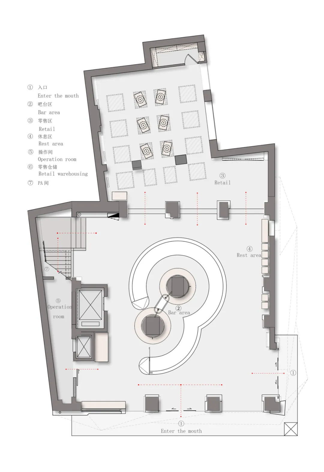
「顽徒ADDICTEA」——2016年诞生自澳洲的中国茶饮品牌,本案是其回归国内的首家门店,同时亦是品牌全球首家旗舰店。
ADDICTEA is the tea drink brand that was founded in Australia in 2016 and has its root in China. This case is about the first shop after its return in China, as well as the first flagship store of the brand all over the world.
店铺选址武汉江汉路,是明清时期的“中俄万里茶道”,武汉作为码头文化发源地,也是中国当时第一个往外国输送茶叶的港口。坐落于此,正是为了讲述关于:中国茶饮”出走与回归“的故事。

拥有100多年历史的江汉路,展示着武汉百年间的繁茂商业画卷,也保留了各个时期的武汉租界建筑风貌。
With a history of more than 100 years, Jianghan Road shows the lush commercial picture of Wuhan in the past hundred years, and also retains the architectural style of Wuhan concessions in various periods.
这座修建于上世纪70年代的旧楼,由新、旧两栋楼体组成。在经历数次违章改造后遗留下来的复杂、封闭且脆弱的建筑结构。背街的旧楼体年久失修,外墙早已破败,内部结构存在安全隐患;而面朝江汉路的新楼幕墙因多次违章加建,支撑结构已不堪重负。失去往日生机的大楼,已与周边建筑大相径庭。
The old building, built in the 1970s, consists of two buildings, new and old. After several illegal renovations, the complex, closed and fragile building structure remains. The old building behind the street is in disrepair, the exterior coating has long been mottled off, and the internal structure also has security risks; The curtain wall of the new building facing Jianghan Road has been overburdened due to multiple illegal additions. The building, which has lost its vitality, is completely different from the surrounding buildings.
如何才能保留旧楼所承载的历史意义,又能赋予它焕然一新的文化印记。这就需要将其融入江汉路街区原有风貌,更要打造出独具吸引力的商业地标。“尊重”与“标新”便是顽徒此次回归的使命。
How can we preserve the historical significance of the old building and give it a new cultural imprint? This needs to integrate it into the original style of Jianghan Road block, but also to create a unique attractive commercial landmark. "Respect" and "new" is the mission of the return of the stubborn.

▲施工过程随记,Construction process notes © 耀设计
After nearly a month of demolition work, the complex structure of the building has been clearly revealed. Due to the secondary construction of the internal steel frame structure, the brick-concrete wall that has been dismantled is shaped like an empty shell, which has great security risks. After carefully sorting out the existing structure, the overall strengthening of the building began. At the same time, the biggest design challenge of this case is how to generate an aesthetic space conforming to the brand attributes of "ADDICTEA" on the basis of floor planning and functional zoning in accordance with the existing conditions and trends.

▲项目远景,Project vision © 此间摄影
本案以空间叙事的手法展开,故事的开章,从一只顽猴开始。




THE MOUNTAIN
COLLAPSED AND REGROUPED
从外观之,建筑立面以困压孙悟空五百年的“五行山”为原型,以解构主义美学定义外观,打碎山体形态后重新组合,以新型铝材、镀膜钢化玻璃为主材承托出锐利张扬的结构。引述海外茶饮品牌所面对的困境与思考,及其呼之欲出的倔强精神,以建筑喷薄而出的力量感,描绘山体撼动,大圣已归的锐利气势。






Looking inside, designers aim to set the main tone as the black and white of the mental aesthetics of the space. Getting rid of the normal thinking pattern, they try to divide the triple forms of the space from the aspect of different types of business. Instead of the formal commercial logics that people are so used to before, after removing some commercial functions that only existed for the superficial reasons, they emphasize the internal seek for the brand itself. Stepping into the buildings, ADDICTEA is improving though its course gradually.
Break though the clouds to see the fog appear.
It can be the reality while it can be the mystery, too.



The story gets it root from the notion of the Five Elements represented by the Five Elements Mountain which conclude metal, wood, water, fire and earth.Designers believe that each material in the space has its "five-element relationship", such as: carbonized wood, is the transformation of wood and fire elements; The clay stone is the phase of soil and water; By recognizing materials in this way and matching them with each other, it seems to build a five-element mountain under the "five-element theory".When they are mixed into the special forms of the space, they are transformed to an extension of the notion from the outside to the inside.
The main forms of the constructions are composed of bare concrete, mirror stainless steel and carbonized Chinses fir. The complicated spatial texture is created by the specular reflection. The sharp geometric lines don’t bring the hard attitude of rejection. However, they bring us to the gorgeous wonderland in imaginations.



The landscape in front of us is constantly cut, copied and overlapped and then gives the mysterious illusion that seems to be beyond the real world.



In the frame structures built by straight lines, the circular operation platforms simulate the shape of auspicious clouds. Fallen into the dark background, they travel with the power of the wind and fly to the clouds. The Monkey King mount the cloud and ride the mist with fabulous joy.



It we view the whole building as the skeleton of the process of improvement, then the first layer of the space can stand for the hope for the newborn of the naughty monkey who experiences several adventures in the free and open world. However, the future is hidden behind the grotesque illusions and only a little of it is found though the corner reflected from the edge.




SECOND REALM: SOUL CULTIVATION
辗转幽经中觅得真章
……
The naughty monkey enters the mountains
and seek for the truth though secluded paths.


Only elevators going down are equipped in the space. If one wants to have a look at the inside space, he’s going to step higher along the stairs and gradually uncovers the spiritual mist of ADDICTEA.




The story unfolds with the prototype of the Monkey King. Designers use the pictorial analogy and the dramatic expressions in order to create an activity of adventure of the mountains and paths for observers from the aspects of vision and sense organs. Together with the walkers’ spirits, they move on through their wondering and thinking along the flowing magma inside the mountains. And the story reaches its climax here.

The rough texture of the rocks can simulate the exploration of the mountains, forests and caves, portraying the aesthetic experience beyond the normal life. Under the coarse façade, the heartbeats and breaths are hidden.








The grasp of the materials seems to be quite capable in the course of constant collision and comparison of coarseness and softness, nature and carving, primitiveness and modernness. It can also echo with the young brand ADDICTEA when it’s set between the comparison of the old and new on the old streets on Hanjiang Road. Among the mixture and innovation, ADDICTEA seek its own location and meanings.





THIRD REALM: BREAKTHROUGH
……

At the arrival of the mountain top,
you are wrapped with the blue sky from all directions.




The sixth layer tells the story of the meeting of the mountain tops in the form of the rooftop bar. Trading tea during the day while getting drunk in the night, only when the space of the tea drink break up the limitation of the notion of tea can it truly explain the meaning of generousness. At this time, the objections being sold are not the limitations of the space; however, it’s the building itself that gives reasons to the existence of the objections.



Looking back to the roads we’ve passed. They become dark from bright, rigid from vigorous. When the roads meet here at this moment, all that has passed will not start again. There’s the charm of mountains and rivers on the road ahead. The echoes of the earth come into ears and stay long.
Designers seriously reckon the compatibility and combination of the brand, products and space. They share the story of self-redemption, growth and return with the technique of architectural structures.






▲细节,Detailed view © 此间摄影
Designers always hold the attitude of sincerity and awesomeness towards the division of traditional culture and modern aesthetics. They put oriental consciousness above the mainstream at the moment which includes not only the location of the brand itself, but also the reflection about the society under the modern background.







▲六层平面图,Plan 6F © 耀设计
- - - - - - - - - - - - - - - - - - - -
Name | 项⽬名称:顽徒ADDICTEA · 大圣归来(全球首家旗舰店)
Project owner|顽徒ADDICTEA
Location | 项目地点 :中国 湖北 武汉
Area | 项目面积:1200㎡
Date|设计时间:2021.10
Date|完⼯时间:2022.07
Design production | 设计出品 :YaoDesign耀设计
Architectural design|建筑设计: 朱寿耀
Interior design|室内设计: 陈丽媛
The Design Team |协作设计: 钱元静
Display Design |软装设计:居合陈设
Lighting Design |照明设计:欧未照明
Art Installation |艺术装置:青骑士艺术社
Guide Landing | 标识落地:中策标识 / 不止标识
Construction Side |施工单位:四川寸匠装饰工程有限公司
Photographer |项目摄影:SHEN PHOTOGRAPHY / 此间摄影 欧阳靖、吴奇
Main materials |主要材料:水泥预制板、碳化杉木、定制晶格纹夹膜玻璃、透光软膜、水泥艺术漆、黑色微水泥、艺术水泥雕塑
Special Thanks|特别鸣谢:福建致合金属制造有限公司 / 福州华福道具制造有限公司 / 紫菜大都汇 / 声达不锈钢 / 滨河玻璃 / 四川精艺创美石材有限公司


以上作品版权归 YaoDesign耀设计所有,我们乐于分享所有的精彩创意,同时敬请您与我们一同保护知识产权。
如果您喜欢我们的观点和作品,请点击右上方按钮,分享到朋友圈。或关注我们的微信公众号:YaoDesign耀设计 。
公众平台与媒体合作约稿请发函至下列官方邮箱,我们将会尽快与您联系。
YaoDesign耀设计 官方联系渠道:
邮箱:yaodesign@vip.163.com
官网:www.yaodesign.net
